|
|
Burlington Route Historical Society
Archives Facility
Click on images below to enlarge;
Updated:
11/27/2018
|
|
|
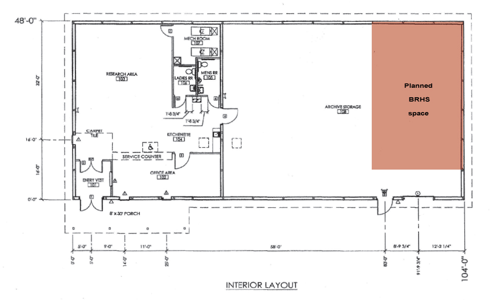
| Floor Plan |
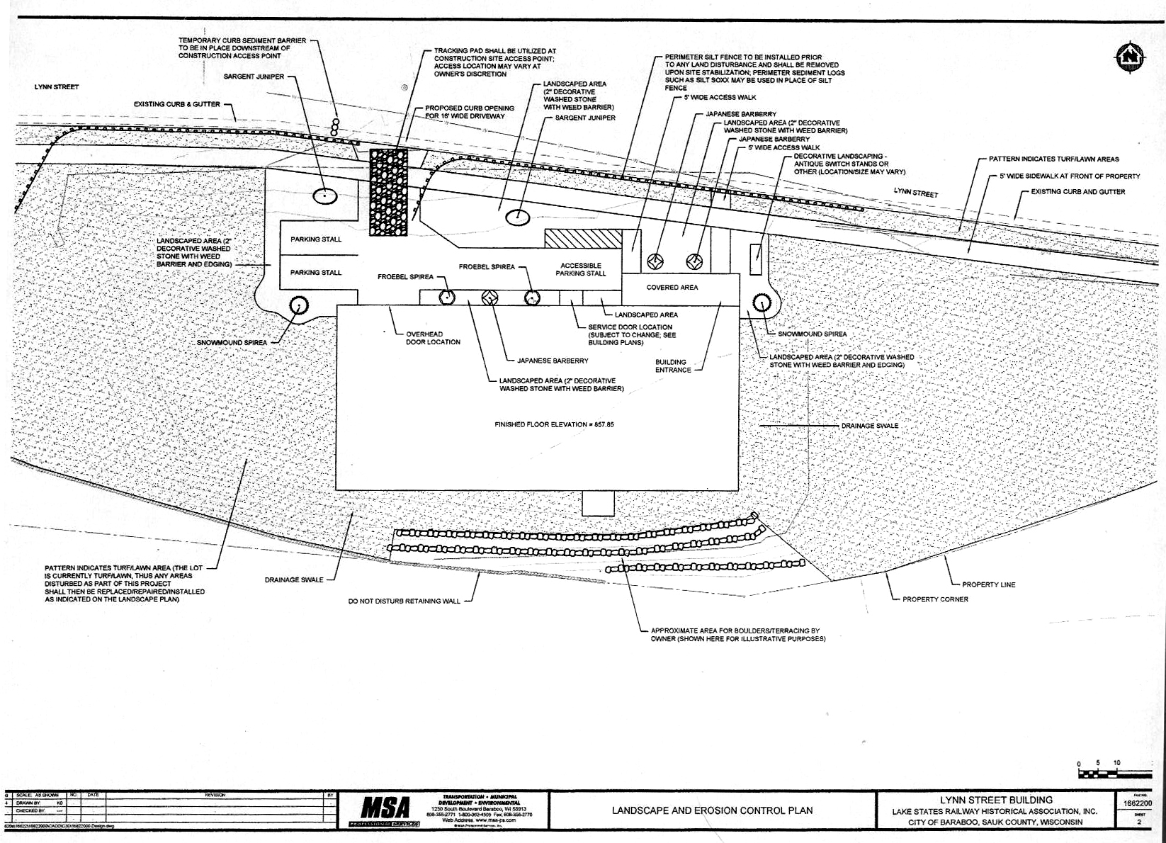
Site Plan |
|
|
|
Architect's Concept Drawing
|
Actual Building as of February 15, 2015
|
|
|
|
Building as of March 15, 2015
|
Load-in Door March 15, 2015
|
|
|
|
Kitchenette area as of April 24, 2015
|
Railfanning the W&S? April 24, 2015
|
|
|
|
Entrance as of April 24, 2015
|
The BRHS space as of April 24, 2015
|
|
|
| The BRHS presented a check for $12,500 at the LSRHA open house on April 25, 2015.
This is our second payment towards the BRHS’ share of the Lake States Railway Historical Association building in Baraboo, WI. From left to right, Jim Singer, BRHS VP of Archives, Tom Whitt, BRHS President, Ken
Breher, LSRHA Treasurer and Dick Goddard, LSRHA President. - Tom Dorner photo
|
Moving in day, May 27, 2015. Two 6-hour work sessions were scheduled for
6/24 and 7/22 to begin the work of organizing the materials. - Jim Singer photo
|
|
|
The May
2015 Archive move involved 65 man hours, 36 travel hours and 13 local
member vehicle trips to prep and move our material to the new Lake States
building. Additionally, professional movers handled 24 cabinets, 1
photocopy machine, 8 pallets of company store materials, 5 pallets of old
Iowa Archive material, 11 pallets of Newberry Library materials and 2
pallets of West Chicago City Museum materials on time and under budget by
33% of our estimate.
|
|
| The latest photo of the nearly completed facility taken just after the large sign had been
installed the evening of June 13th, 2015. - Dick Goddard photo
|
Progress as of July 20, 2015
|
|
|
|
|
September 3rd move
|
|
|
|
|
|
|
|
|
|
October 3rd VIP Open House
|
| In September 2015,
invitations were sent to donors towards the Archive Building Fund for a
VIP Open House at the new Archives. At that time, we had received
$49,000 of the $50,000 goal that the BRHS Board of Directors had set.
As you can see by the photos, much work has
been accomplished. Four full-day work sessions have been held since
the May move in totaling over 100 additional man hours.
On September 3rd, 2015, an additional 7
pallets consisting of materials acquired form the Newberry Library and
publication stock from our printer was moved to the archive facility.
We owe a huge debt of gratitude to the
Archive Committee members and to Jim Singer as the V.P. of Archives and
leader of this crew!!
|
|
|
|
|
|
|
|